
BASHTA BACHEVSKY
ПРОСТІР БІЗНЕСУ ТА ЖИТТЯ | ГОЛОВНА ПЛОЩА РАЙОНУ

Створює MULLER
Керуюча компанія

ПРО ПРОЄКТ


Єврейський підприємець
Лейба Бачелес започатковує виробництво алкоголю.
Його напої швидко здобувають популярність серед аристократії Галичини та Європи.
Лейба Бачалес охрестився і став католиком
Леопольдом Максиміліаном Бачевським
ЮЗЕФ АДАМ БАЧЕВСЬКИЙ
нащадок засновника і творець бренду J.A. Baczewski.
Він перетворив локальне виробництво у Львові на міжнародний бренд. Оlby із перших застосовував масштабний маркетинг, впізнавану айдентику та експортну стратегію.
ЮЗЕФ АДАМ БАЧЕВСЬКИЙ

ПРО ПРОЄКТ




Переслідування та зміна режимів у 1939 змушують родину залишити Львів та перевезти залишки розкраденого виробництва у Австрію.
2025 рік
Бренд J. A. Baczewski досі існує у Європі,
а територія мануфактури у Львові отримала
нове життя.
BASHTA BACHEVSKY
сучасна локація, що зберігає памʼять місця й знову працює на корист людей, міста, економіки та культури.

ПРО ПРОЄКТ

BASHTA Bachevsky — багатофункціональний міський простір,
що об’єднує бізнес, сервіси, гастрономію, спорт і дозвілля
в єдину сучасну екосистему, простір щоденного життя міста.

Проєкт об’єднує різні функції в єдину логіку, де резиденти взаємно доповнюють один одного, формуючи стабільний трафік і живе міське середовище.
Територія колишньої мануфактури Бачевських
Ревіталізований історичний комплекс
7 будівель із різними функціональними векторами
Понад 12 000 м²

ЛОКАЦІЯ
Район розвивається, забудовується новими ЖК, також стрімко росте число тих, хто обирає заміське житло у північній частині Львова.
BASHTA для них стане найкомфортнішим місцем для аудиторії "поруч" та "по дорозі".



ЖК ВЕЖА
839 КВАРТИР
528 КВАРТИР
450 КВАРТИР
3600 КВАРТИР
Старт будівництва

ЖК SOHO
ЖК НОВИЙ ФОРТ
ЖК БРАМА
5 ХВ ПІШКИ
1 ХВ ПІШКИ
8 ХВ ПІШКИ
12 ХВ ПІШКИ
736 КВАРТИР
ЖК ФАЗЕР
8 ХВ ПІШКИ
Старт будівництва

ЖК ВЕЖА
839 КВАРТИР
528 КВАРТИР
450 КВАРТИР

ЖК НОВИЙ ФОРТ
ЖК БРАМА
5 ХВ ПІШКИ
1 ХВ ПІШКИ
8 ХВ ПІШКИ
736 КВАРТИР
ЖК ФАЗЕР
8 ХВ ПІШКИ
Старт будівництва

ЦІЛЬОВА АУДИТОРІЯ

ЗА ДАНИМИ META
Аудиторія, яку бачать соціальні мережі
Facebook та Instagram у зоні нашого таргетингу.



ПРОЄКЦІЯ
МЕТА ПРОЄКТУ
Локація, орієнтир, сюди зручно доїхати на авто, припаркуватися, провести зустріч, повечеряти в ресторані, пограти в падел, та скористатися іншими послугами.
На території простору завжди багато людей, постійний рух, територія “живе”. Башту відвідують жителі сусідніх ЖК, працівники офісів, та ті, кому “по дорозі”.
BASHTA Bachevsky – це перша асоціація, коли хтось пропонує зустріч в районі Підзамче.
Бренд і місце, яке “нашуміло” івентами, історією, сервісами.


ВІЗУАЛІЗАЦІЯ







ПРОЄКТ


Д-3
Л-2
О-2
Р-3
Г-1
В-3

Н-2

ПРОЄКТ


Г-1
В-3
Д-3
О-2
Л-2
Н-2
Р-3
2023: офісний центр ~ 1,294 м2
2025: офісний центр / рітейл ~ 1,480 м2
1-й квартал 2026: медичний хаб ~ 1,000 м2
2-й квартал 2026: Падел-корти,частина паркінгу
1-й квартал 2027: Винний погріб, ресторан та коворкінг ~ 2,200 м2
4-й квартал 2027: приватний навчальний заклад ~ 940 м2
2-й квартал 2027: спортивним зал, супермаркет, кафе та ресторани, коворкінг та рітейл ~ 4,000 м2

Д-3

Ресторани, офіси, супермаркет, спортзал



Н-2

Медичний хаб





Г-1
Ресторан, коворкінг, винний погріб



В-3
Падел-корти, смузі бар



Р-3
Офісний центр / рітейл ~ 1,480 м2







Здається без меблів

КОМЕРЦІЙНА ПРОПОЗИЦІЯ
Будівля:
Д-3
Площа:
500-600 м2
Електрика:
+- 85 Квт
Вартість оренди:
$15 м2
Поверхи:
2
Готовність будівлі:
2027 р
Літній майданчик:
80 м2


Д-3 -- ОДНА З КЛЮЧОВИХ БУДІВЕЛЬ ПРОСТОРУ
Поруч із самою баштою з виходом на центральну площу, де розмістяться літні майданчики ресторанів. Недалеко від паркінгу, проте на самій площі -- лише пішохідна зона. Зайти в будівлю можна як і зсередини простору, так і з зовнішньої сторони, яка виходить на вулицю та ЖК Брама.




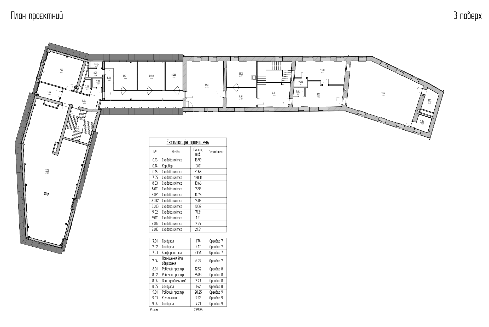
1 ПОВЕРХ


2 ПОВЕРХ


3 ПОВЕРХ